Toggle navigation
Home
About Us
Our Plans
Homes
Request a Catalogue
Gallery
Featured
Exterior
Kitchen
Bathroom
Living
Bedroom
Inspiration
Contact Us
Login
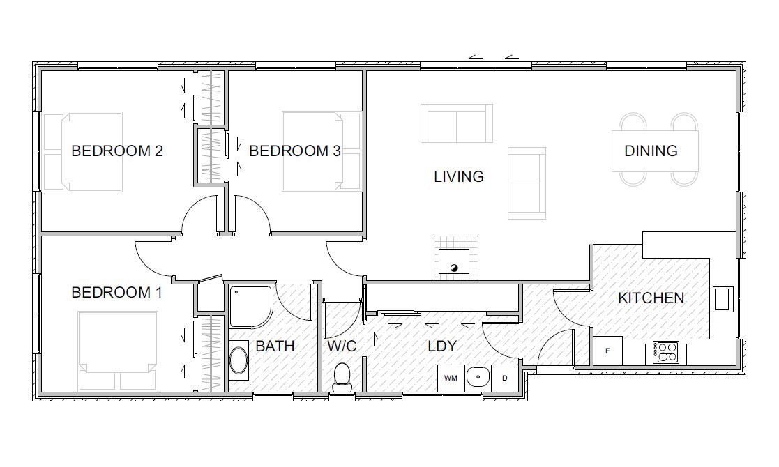
Milford
KEY FEATURES
Excellent design for a smaller section or farm cottage.
3
1
1
Width:
6.6m
Length:
15.7m
Floor Area:
113 m
2
ENQUIRE ABOUT THIS PLAN
DOWNLOAD THIS PLAN
REQUEST A CATALOGUE